Kakhovska Apartment 80m²

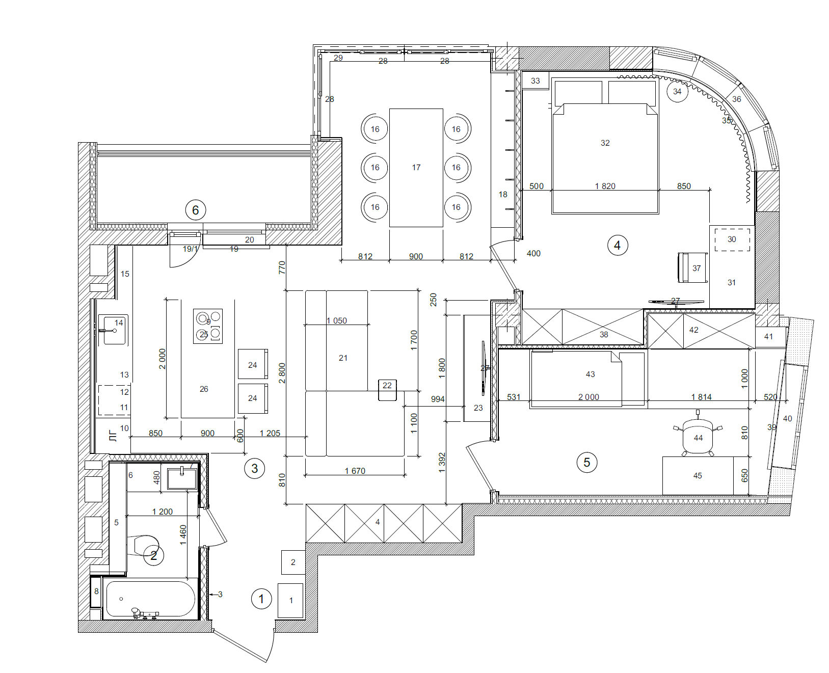
This residential interior design project was created for a young family in Kyiv, Ukraine. The 80 m² apartment was designed to combine a living area, kitchen, and dining space into one functional open-plan layout. The interior design focuses on calm neutral materials, soft lighting, and minimalist furniture to create a comfortable and modern family home. The apartment layout was carefully organized to support everyday living, including practical storage solutions and clear spatial zoning. The project reflects a contemporary approach to apartment interior design focused on functionality, comfort, and timeless materials.